top of page

Création & aménagement de Roulottes sur-mesure
Nos réalisations
Roulotte & Roulotte tonneau



Aménagement intérieur et extérieur
Habitation nomade ou utilisation professionnelle
Personnalisez votre roulotte : de 4 à 13 mètres de long.

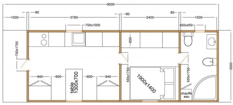
Plan sur-mesure
Un aménagement sur-mesure selon vos besoins !

Créations et Installations de lits Baldaquins Sur-Mesure
Conçus pour l'Extérieur en Bois Douglas & Châtaignier !

Tables Chêne
personnalisées et sur-mesure
Selon stock disponible : Tables & Chevets de lit
bottom of page